Celoroční mobilní dům Vila Lisabon Thermowood 8,2 x 3m na klíč, 24,6 m2
Kód: LISABON THERMOVážení zákazníci, Fotografie jsou pouze orientační. Snažíme se o maximální přesnost fotografií, bohužel nemůžeme vždy zaručit jejich 100% správnost.
Související produkty
Detailní popis produktu
Naše mobilní domy k trvalému bydlení nejsou jen pastvou pro oči a vizuální pozoruhodností. Bez ohledu na to, zda si pro jejich umístění vyberete zelenou louku, kouzelný les, slunný břeh nebo jakékoli jiné místo, tyto atraktivní bytové jednotky vznikly díky vysoce kvalitním materiálům a pevné konstrukci. Jedněmi z nejdůležitějších výhod jsou rychlá instalace a cenová dostupnost.
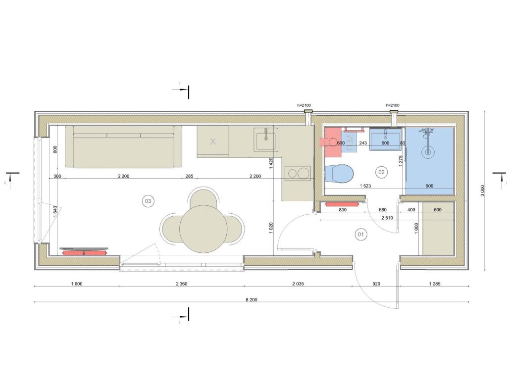
Nejmenší modul o velikosti 24,6 m², 8,2 x 3 m je vhodný k bydlení jednotlivců nebo párů, může však sloužit také jako kancelář, ateliér, k Vaší rekreaci nebo pro Vaše hosty. Dispozice 1+kk s komfortní koupelnou zahrnuje obývací pokoj, z něhož je nádherný výhled na okolí.
Zateplené mobilní domy splňují nároky na současné moderní bydlení, a nejen, že je můžete umístit na Vámi vybrané místo, ale když změníte působiště, mohou cestovat s Vámi!
Vnitřní prostor je velmi dobře větratelný a splňuje nároky na příjemné klima, přičemž náklady na provoz jsou nízké.
Celoroční mobilní domy dodáváme k nastěhování s plně funkční koupelnou včetně sanitárního zařízení.
Klíčové vlastnosti:
- Velikost: vnitřní plocha 17,76 m², vnější plocha 24,6 m²
- Podlaží: jednopodlažní dům
- Dispozice: kuchyň s obývacím pokojem, koupelna, chodba
- Materiály: smrkový hranol / OSB deska / obklad: Thermowood a pozinkovaný kov, lakovaný (barvený) / izolace
Výhody tohoto modulového domu:
- Rychlé řešení: veškerá montáž je hotová, zbývá pouze umístit dům na pozemek.
- Moderní řešení: elegantní a funkční, ideální kombinace designu s praktičností.
- Energetická účinnost: dům je vybaven kvalitní tepelnou izolací, což snižuje náklady na vytápění.
- Obklad: Thermowood a pozinkovaný kov, lakovaný (barvený)
- Kompletní vybavení: koupelna je plně vybavena (WC, sprchový kout, bojler 80 l).
- Připravené k napojení do sítě: elektrická přípojka, voda i kanalizace jsou připraveny k připojení.
- Vytápěné podlahy: ve všech místnostech je podlahové vytápění.
- Venkovní osvětlení: v domě je nainstalováno venkovní osvětlení.
- Modulový dům do 1 milionu Kč pro ekonomické řešení.
- Modulové dřevostavby pro celoroční bydlení.
TECHNICKÉ PARAMETRY KE STAŽENÍ ZDE
Není zahrnuto v ceně:
- nábytek a domácí spotřebiče
- kuchyňská linka
- přívod sítí k domu: elektřina, voda, kanalizace
- doprava
Tento levný montovaný dům je skvělou volbou pro každého, kdo ocení pohodlí a rychlou realizaci. Pokud hledáte nejlepší modulové domy na trhu, právě jste je našli!
V případě dotazů volejte na tel. číslo ⇒ +420 702 009 895
Hmotnost domku je cca 6000 kg.



