Dřevěný zahradní domek s patrem na spaní Loma 4, 395 x 630 cm, 44 mm
Kód: VS44_0330Vážení zákazníci, Fotografie jsou pouze orientační. Snažíme se o maximální přesnost fotografií, bohužel nemůžeme vždy zaručit jejich 100% správnost.
Související produkty
Detailní popis produktu
TECHNICKÉ PARAMETRY
Síla stěn 44 mm /neimpregnované smrkové dřevo/
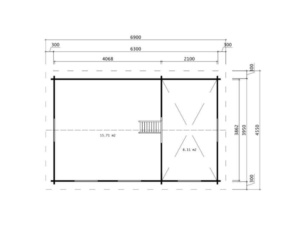
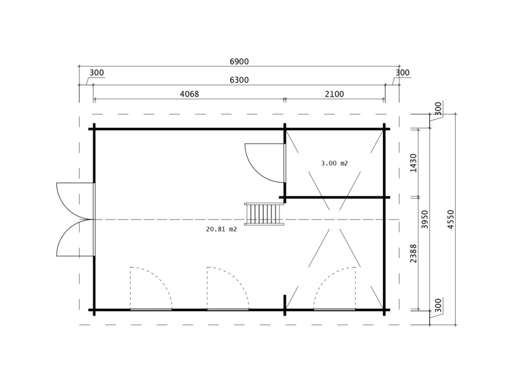
Rozměry 395 x 630 cm
Plocha 23,81+8,11 m²
Počet místností: 2
Výška nejvyššího bodu 398,3 cm
Výška stěn 351 cm
Přesah střechy 30 cm / 30 cm / 30 cm / 30 cm
Plocha střechy 32,35 m²
Úhel střechy 14°
Dveře 1x 1580 x 2040 mm /dvoukřídlé, dvojsklo/
Dveře 2x 840 x 1965 mm /jednokřídlé, plné/
Okno 5x 900 x 635 mm /otevíratelné dovnitř, dvojsklo/
Okno 3x 900 x 1830 mm /otevíratelné dovnitř, dvojsklo/
Podlaha: palubky 18 x 90 mm (součástí balení)
Zahradní domek má přírodní barvu bez jakékoliv povrchové úpravy a je připraven k dalším nátěrům a impregnacím. Dodáváme jako stavebnici v rozloženém stavu. Součástí dodávky je kompletní kování. Součástí dodávky nejsou střešní krytiny, barvy, laky.
Velikost balení xxx x 118 x xx cm
Hmotnost xxxx kg
DOPRAVA A MONTÁŽ PO CELÉ ČR
Ceny zahradních domků jsou uvedeny bez montáže a dopravy.
Zahradní domek je vyroben ze severského dřeva.
Severské dřevo je svými flexibilními vlastnostmi ideální pro použití ve stavebnictví. V chladnějších oblastech Evropy roste pomalu, a proto domkům propůjčuje obzvláště stabilní spolehlivost, odolnost, dlouhou životnost, strukturální pevnost a estetický vzhled. Dřevo je udržitelná a obnovitelná surovina. Podporujeme ekologickou a odpovědnou výrobu dřeva.
Dřevo na domkách je třeba ošetřit lazurou jak zvenku, tak i vhodným nátěrem zevnitř.
