Saunová kamna na dřevo Klasik Panorama Long, výkon 18 kW
Kód: U-KW18-LONGVážení zákazníci, Fotografie jsou pouze orientační. Snažíme se o maximální přesnost fotografií, bohužel nemůžeme vždy zaručit jejich 100% správnost.
Související produkty
Detailní popis produktu
Saunová kamna Klasik Panorama Long 18 kW dodají parní místnosti do 18 m³ intenzivní teplo a díky velkoformátovému sklu SCHOTT ROBAX 310 × 310 mm nabídnou fascinující pohled na tančící plameny. Robustní topeniště z 8 mm oceli a dvojitý S-kouřovod zajišťují rychlý náběh teploty, dlouhou akumulaci tepla i úspornou spotřebu dřeva. Vyjímatelný palivový kanál umožňuje pohodlné přikládání z vedlejší místnosti, takže klima v parní kabině zůstává stabilní.
Hlavní přednosti
-
Panoramatické sklo 310 × 310 mm – široký výhled do ohně, žáruvzdorné až do 700 °C.
-
Dvojitý S-kouřovod – vyšší tah, rychlejší ohřev kamenů, menší spotřeba paliva.
-
8 mm ocelová konstrukce – dlouhá životnost i v kyselém prostředí sauny.
-
Vyjímatelný palivový kanál – přikládání z předsíně bez rušení saunového klimatu.
-
Černý nerezový plášť – moderní vzhled, snadná údržba.
Technické parametry
-
Tepelný výkon: 18 kW
-
Doporučený objem sauny: do 18 m³
-
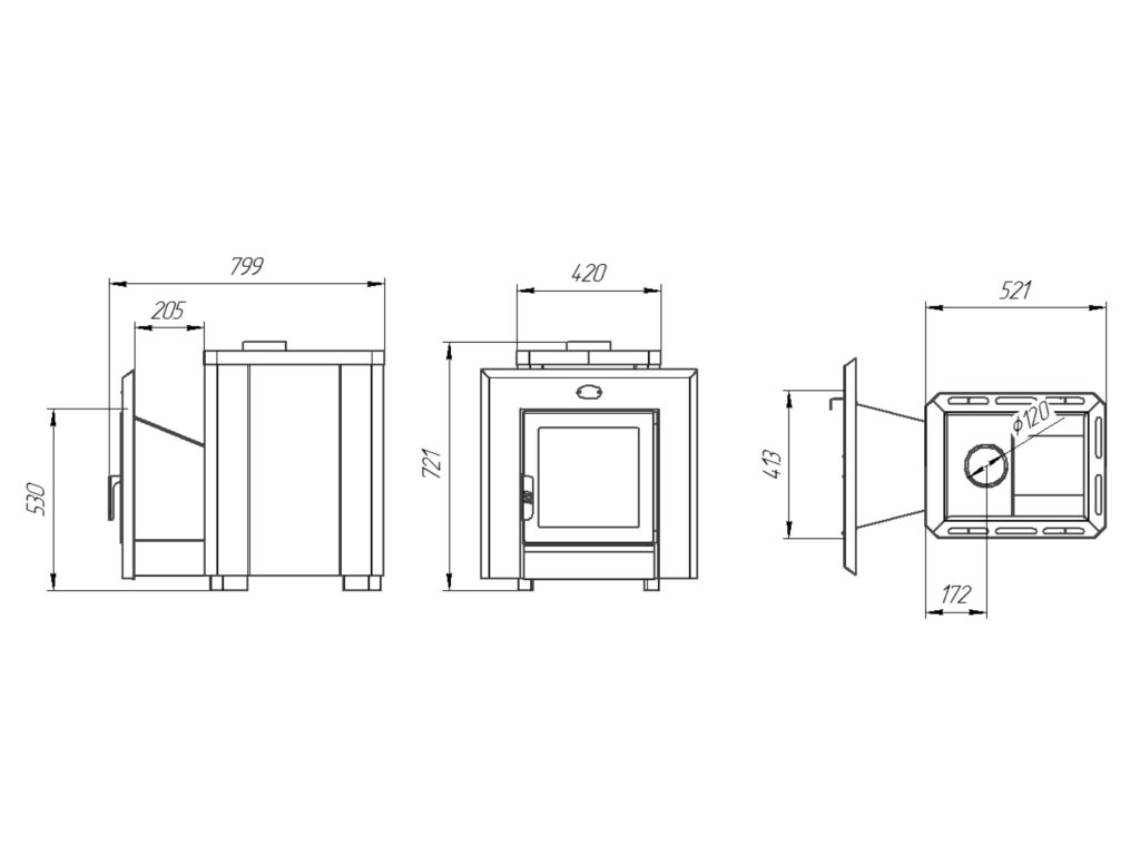
Rozměry: 721 × 420 × 799 mm (v × š × d, vč. vyústění)
-
Průměr kouřovodu: 120 mm
-
Hmotnost: 85 kg
-
Tloušťka horní desky topeniště: 8 mm
-
Sklo dvířek: SCHOTT ROBAX 310 × 310 mm
-
Plášť: černý
-
Přikládání: z vedlejší místnosti (vzdálený kanál 200 mm)
-
Délka polen: do 30 cm
- Hmotnost kamenů 40-50 kg. Množství saunových kamenů může být individuálně odlišné v závislosti na frakci a hustotě uložení kamenů. (nejsou součástí dodávky)
- Velikost kamenů (cm) 7,5 cm-15 cm (nejsou součástí dodávky)

Kompletní návod k použití ke stažení zde.
Doplňkové parametry
| Kategorie: | Kamna na dřevo |
|---|---|
| Rozměr zboží (VxŠxH): | 850x500x700 |
