Venkovní finská sauna HANKO PLUS 2,1x3,7m, 2 místnosti a terasa, smrk
Kód: 101064/ROZ 101064/SMO2 101064/MON Zvolte variantuVážení zákazníci, Fotografie jsou pouze orientační. Snažíme se o maximální přesnost fotografií, bohužel nemůžeme vždy zaručit jejich 100% správnost.
Související produkty
Detailní popis produktu
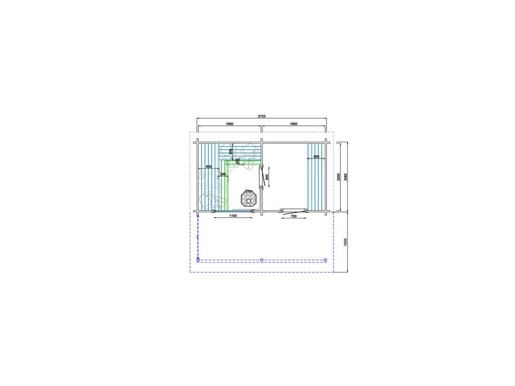
Vnější rozměr: 208,2 x 372,3 cm
Materiál: neimpregnované smrkové dřevo o tloušťce 40 mm
Podlaha: podlahová prkna ze smrku o tloušťce 28 mm, 1x kovový odpadní odtok
Střecha: strop ze smrkového vnitřního obložení + PIR izolace pro saunu 30 mm
2x lavice z olšového dřeva, 28 x 90 cm
1x uzamykatelné vnější dveře z tvrzeného kouřového skla
1x vnitřní dveře z tvrzeného kouřového skla o tloušťce 8 mm
1x okno z tvrzeného kouřového skla, dřevěný rám
Cena nezahrnuje elektrická saunová kamna ani kamna na dřevo (možnost výběru ⇒ zde)
Velikost balení: 1x paleta o rozměrech 120 x 420 x 130 cm
Váha: 1500 kg
Obsahuje návod a šrouby
Pokud montáž probíhá svépomocí, sauna bude dodávána jako stavebnice. Balení neobsahuje barvu, šindel, kabely a osvětlení pro elektroinstalaci. Pozor, balík s materiálem není vodotěsný. Folie chrání dřevo jen proti znečištění. Skladujte proto stavební sadu až do konečné montáže v suchu, ne přímo položenou na zemi, chráněnou proti vlivům počasí (vlhkost, slunce atd.). Neskladovat ve vytápěném prostoru!
Vyhřátí sauny:
Teplota v sauně by měla kolísat mezi 80–90°C. Je třeba počítat s tím, že teplý vzduch se hromadí u stropu, proto se teplota v různých výškách může výrazně lišit. Teplota u podlahy by se měla pohybovat okolo 20–25°C, v úrovni lavic by měla být teplota v rozmezí 65–75°C a přibližně 10 cm pod stropem by teplota měla dosahovat 90°C. Při nízkých teplotách pod bodem mrazu a silném zimním chladném větru se může sauna vyhřívat výrazně delší dobu.
