Zahradní domek se saunou Dresden, 3 místnosti a terasa, 6,6x4,8m, tl 70mm
Kód: 101091/ROZ 101091/MON Zvolte variantuVážení zákazníci, Fotografie jsou pouze orientační. Snažíme se o maximální přesnost fotografií, bohužel nemůžeme vždy zaručit jejich 100% správnost.
Související produkty










Detailní popis produktu
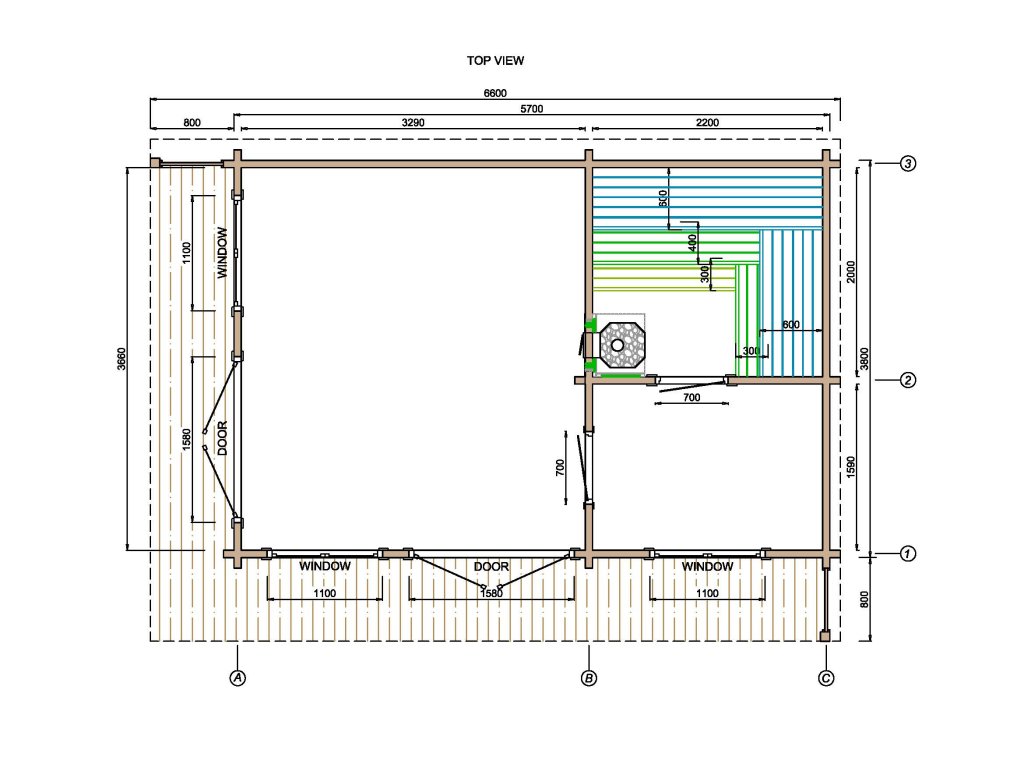
Saunový domek ze severského smrku má vnější rozměry 6,6 x 4,8 m, tři místnosti a terásku. Přesah střechy je dalších 80 cm, také zde si můžete vytvořit malou odpočívárnu. Síla stěny 70 mm. Pro 6 osob.
- Vnější rozměr: 660 x 480 cm
- Materiál: neimpregnované smrkové dřevo o tloušťce 70 mm
- Podlaha: podlahová prkna ze smrku o tloušťce 28 mm, 2x kovový odpadní odtok
- Střecha: šindel s podkladovou vrstvou, střešní prkna 28 mm
- V sauně jsou stropní smrkové panely + PIR izolace 30 mm
- 2x uzamykatelné vnější dveře ze skla, dřevěný rám
- 2x vnitřní dveře z tvrzeného kouřového skla
- 3x otevíratelné okno z dvojskla, dřevěný rám
- 3x vnitřní lavice z olše
- Balení obsahuje návod a šrouby
Cena nezahrnuje elektrická saunová kamna ani kamna na dřevo (možnost výběru ⇒ zde)
Hmotnost: 2300 kg
INSTALAČNÍ MANUÁL KE STAŽENÍ ZDE
Pokud montáž probíhá svépomocí, sauna bude dodávána jako stavebnice. Balení neobsahuje barvu, šindel, kabely a osvětlení pro elektroinstalaci. Pozor, balík s materiálem není vodotěsný. Folie chrání dřevo jen proti znečištění. Skladujte proto stavební sadu až do konečné montáže v suchu, ne přímo položenou na zemi, chráněnou proti vlivům počasí (vlhkost, slunce atd.). Neskladovat ve vytápěném prostoru!
Vyhřátí sauny:
Teplota v sauně by měla kolísat mezi 80–90°C. Je třeba počítat s tím, že teplý vzduch se hromadí u stropu, proto se teplota v různých výškách může výrazně lišit. Teplota u podlahy by se měla pohybovat okolo 20–25°C, v úrovni lavic by měla být teplota v rozmezí 65–75°C a přibližně 10 cm pod stropem by teplota měla dosahovat 90°C. Při nízkých teplotách pod bodem mrazu a silném zimním chladném větru se může sauna vyhřívat výrazně delší dobu.
Dřevo na domkách je třeba ošetřit lazurou jak zvenku, tak i vhodným nátěrem zevnitř.