Dřevěný zahradní domek Wrexham 2, 2 místnosti, 485 x 300, 44 mm
Kód: S4416740Vážení zákazníci, Fotografie jsou pouze orientační. Snažíme se o maximální přesnost fotografií, bohužel nemůžeme vždy zaručit jejich 100% správnost.
Související produkty
Detailní popis produktu
Roubený zahradní domek je ideálem pro všechny, kdo kromě pohodlného odpočinku potřebují uskladnit i pár důležitých věcí. Zatímco v útulné a světlé místnosti s dvoukřídlými dveřmi a velkým oknem se budete cítit blízko přírodě, do sousedícího suchého a čistého kumbálku můžete odložit kolo, motorku, rybářské potřeby nebo materiál pro zahradu a pěkně ho zamknout.
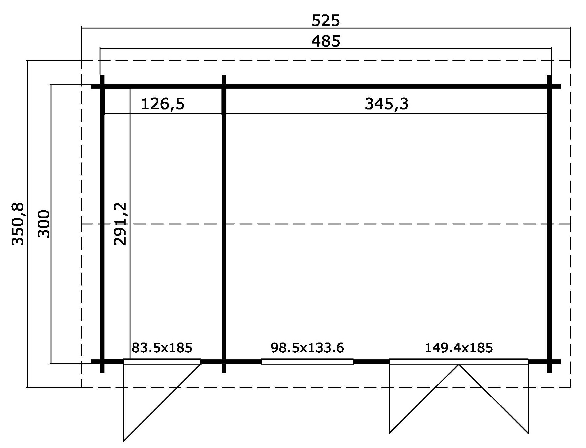
TECHNICKÉ PARAMETRY
Síla stěn 44 mm /neimpregnované smrkové dřevo/
Rozměr 485 x 300 cm
Plocha domku 13,87 m2
Nejvyšší bod stropu 250,8 cm
Výška stěn 210,9 cm
Přesah střechy 20 cm
Plocha střechy 18,9 m2
Úhel střechy 13°
Dveře 1x 1494 x 1850 mm /dvoukřídlé dveře, s dvojitým sklem/
1x 835 x 1850 mm /jednokřídlé dveře, jednoduché sklo/
Okno 1x 985 x 1336 mm /1x otevíratelné dovnitř, s dvojitým sklem/
Podlaha: palubky 18 x 90 mm (součástí balení)
Zahradní domek má přírodní barvu bez jakékoliv povrchové úpravy a je připraven k dalším nátěrům a impregnacím. Dodáváme jako stavebnici v rozloženém stavu. Součástí dodávky je kompletní kování a podlaha, okna i dvoukřídlé dveře jsou vyplněny dvojsklem.
»DOPRAVA A MONTÁŽ PO CELÉ ČRSoučástí dodávky nejsou střešní krytiny, barvy a laky. Ceny zahradních domků jsou uvedeny bez montáže a dopravy.
Balení 630 x 118 x 71 cm, hmotnost 1334 kg
Širší nabídku s podrobnostmi k jednotlivým domkům Lasita Maja najdete v katalogu ⇒ zde
Vybrali jste si? Kontaktujte nás! info@sotra.cz
Zahradní domek je vyroben ze severského dřeva.
Severské dřevo je svými flexibilními vlastnostmi ideální pro použití ve stavebnictví. V chladnějších oblastech Evropy roste pomalu, a proto domkům propůjčuje obzvláště stabilní spolehlivost, odolnost, dlouhou životnost, strukturální pevnost a estetický vzhled. Dřevo je udržitelná a obnovitelná surovina. Podporujeme ekologickou a odpovědnou výrobu dřeva.
Dřevo na domkách je třeba ošetřit lazurou jak zvenku, tak i vhodným nátěrem zevnitř.
Doplňkové parametry
| Kategorie: | Roubené zahradní domky |
|---|---|
| EAN: | 4742913017404 |
